Preventivo Casa in Legno

Edificio residenziale MM

Edificio residenziale MM (1/6)
  1. Home
  2. Progetti Case in Legno
  3. Arch. Mirko Mugione
  4. Edificio residenziale MM
5,0/5
votato da 1 persone
size Monteprandone (AP) style Moderna size 450 floors 4 bedrooms 8 bathrooms 6

Descrizione Progetto

Progetto di ristrutturazione edilizia con demolizione e ricostruzione di un edificio residenziale inagibile.
Struttura di fondazione in cls armato, elevazione in legno a telaio e completamento con materiali naturali quali mattoni in terra cruda, isolanti in canapa, intonaci in argilla e calce. 

Grande attenzione ai sistemi passivi ed alle masse termiche per ottimizzare lo sfruttamento degli apporti solari invernali e mitigare il surriscaldamento estivo. 
Edificio NzEB, con autonomia energetica quasi totale.  

 


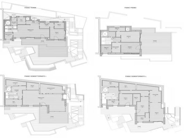
Planimetria Progetto

  • Arch. Mirko Mugione - Edificio residenziale MM
  • Arch. Mirko Mugione - Edificio residenziale MM
  • Arch. Mirko Mugione - Edificio residenziale MM

Descrizione

Architetto operante nel settore residenziale e commerciale dal 2005.

Cresciuto nelle valli del Trentino Alto Adige, i boschi ed il legno come materiale per le costruzioni, l'arredo e per l'energia, fanno parte della mia cultura fin dall'adolescenza.

Fin dai primi anni l’interesse per i temi della sostenibilità e del risparmio energetico hanno influenzato l’attività e tali concetti e le relative soluzioni tecniche sono stati adottati sempre più nel tempo nei vari progetti affrontati, approfondendo man mano la conoscenza della materia e dei sistemi applicabili.

Negli ultimi anni le nozioni della sostenibilità ambientale ed economica si sono ampliati con la ricerca di soluzioni e materiali della bioedilizia, l'utilizzo di materiali naturali e l'analisi del ciclo di vita completo del costruire, applicando al meglio i concetti dell'economia circolare, del benessere e della salubrità degli ambienti abitati.

La qualifica di consulente-progettista energetico per l'ente Casa Clima è alla base del percorso intrapreso ed i successivi passi hanno portato ad approfondire le competenze e le capacità progettuali in questo vasto e complesso settore dell'edilizia, che sempre più diventerà imprescindibile e necessario per il futuro sviluppo economico, sociale ed ambientale del mondo dell'abitare.

I progetti si affrontano seguendo le 5 macro-categorie della bioedilizia ed in tali soluzioni le costruzioni in legno esprimono tutte le loro potenzialità e gli indiscutibili vantaggi:

  1. Pianificazione sostenibile ed utilizzo di soli materiali naturali;
  2. Salvaguardia e sfruttamento massimo delle risorse naturali e progettazione di edifici e sistemi passivi;
  3. Integrazione sinergica edificio-impianti;
  4. Gestione del progetto nell’ottica dell’economia circolare e riciclabilità completa;
  5. Qualità degli ambienti interni con certificazione di prodotti, sistemi e tecnologie ed edificio.

Le tecniche ed i materiali del passato, utilizzati con le moderne tecnologie senza snaturarne le naturali caratteristiche, sono le soluzioni più adatte per una edilizia veramente sostenibile per l’uomo, l’ambiente e l’economia sociale contemporanea e del futuro. 
Una costruzione sana e salubre si realizza con pochi materiali naturali, quali il legno, l’argilla, la calce, la canapa. In tal modo si minimizza la necessità di impianti per sopperire alle mancanze e ai difetti dell’involucro.



Altri progetti di Arch. Mirko Mugione