Preventivo Casa in Legno

Villa 223

Villa 223 (1/6)
  1. Home
  2. Le migliori Case in Legno
  3. Brennerhaus
  4. Villa 223
5,0/5
votato da 1 persone
size Feldkirch (A) size 2015 style Moderna size 223 floors 2 bedrooms 5 bathrooms 3

Descrizione Progetto

Informazioni generali 

Tetto piano 

m² lordi 222,94 m²  

Inclinazione tetto  1°  

camere  5  m² 

calpestabile  173,88 m²  

Piano terra  87,20 m²  

Piano primo  86,67 m²


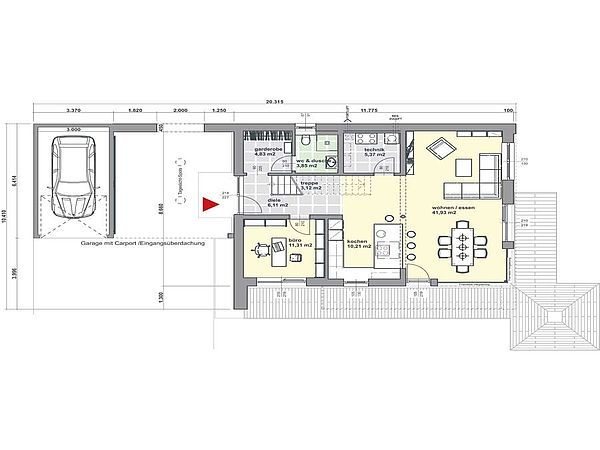
Planimetria Progetto

  • Brennerhaus - Villa 223
  • Brennerhaus - Villa 223

Descrizione Azienda

Brennerhaus è un'impresa altoatesina specializzata nella fornitura e realizzazione di case in bioedilizia in nord Italia. Costruiamo le nostre case con il sistema a telaio o in Blockhaus (in massello lamellare di abete o larice). Il legno massello lamellare è il materiale più importante per le case Brennerhaus in bioedilizia è un materiale affascinante! La produzione delle case avviene esclusivamente in Austria e abbiamo personale formato e preparato. Naturalmente riceverete tutte le certificazioni italiane in vigore, per ricevere l’abilitazione della vostra casa. L’implemento di materiali naturali ci permette di fornire un ambiente sano e salubre in cui abitare. In più le nostre case offrono eccellenti prestazioni di resistenza termica e acustica e garantiscono un ottimo confort a basso consumo energetico.

La nostra forza consiste nella fornitura e il montaggio delle case in bioedilizia su misura, realizzando ogni Suo desiderio. Le case vengono progettate individualmente, rispettando qualsiasi desiderio ed esigenza del cliente.

Uno dei successi della Brennerhaus si deve soprattutto dall’esecuzione strettamente organizzata del chiavi in mano. Brennerhaus organizza tutte le opere ordinati dal cliente, per questo il cliente ha un unico referente. La fornitura e il montaggio avvengono sotto il controllo e la supervisione della Brennerhaus, fino al collaudo finale dalla struttura. Per garantire questo, la Brennerhaus è sottomessa ai continui controlli di qualità dai diversi enti certificatori. In più possiamo garantire al cliente, prezzi fissi fino al completamento della casa.

Fornire case sane e innovative a un prezzo ragionevole – questo è la forza della Brennerhaus.


Progettisti Case in Legno


Altri progetti di Brennerhaus