Preventivo Casa in Legno

Negozio con laboratorio

Negozio con laboratorio (1/3)
  1. Home
  2. Le migliori Case in Legno
  3. Castellani
  4. Negozio con laboratorio
5,0/5
votato da 1 persone
size Monte Giberto (FM) size 2018 style Classica size 70 floors 1
Range di prezzo
100.000€ - 150.000€

Descrizione Progetto

Sistema costruttivo: Platform-frame


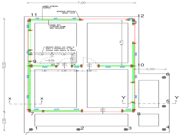
Planimetria Progetto

  • Castellani - Negozio con laboratorio

Attenzione: la localizzazioni qui visualizzate sono delle sommarie indicazioni territoriali e non il luogo preciso della costruzione!

Descrizione Azienda

Da oltre 45 anni lavoriamo il legno per l’edilizia, specializzati nella progettazione e costruzione di case in legno e ampliamenti residenziali. Ci occupiamo di tutte le fasi costruttive, anche dell’impiantistica e delle finiture, per offrire la certezza dei tempi e dei costi pattuiti. I 45 anni di attività e di esperienza ci hanno portato ad ottenere l’importanti certificazioni che garantiscono al committente sulla serietà del costruttore, sulla qualità dei materiali e dei sistemi costruttivi utilizzati, e facilita l’accesso alla finanza agevolata con istituti di credito e assicurativi. 


Progettisti Case in Legno


Altri progetti di Castellani